A section view of the 26x16m house building AutoCAD drawing model
Description
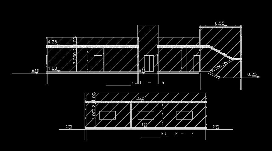
A section view of the 26x16m house building AutoCAD drawing model is given. Two houses are available on this plan. This is a single story house building. The living room, kitchen, master bedroom, kid’s room, guest room, and two common bathrooms are available on these two houses. For more details download the AutoCAD drawing file from our cadbull website.
File Type:
DWG
File Size:
76 KB
Category::
Structure
Sub Category::
Section Plan CAD Blocks & DWG Drawing Models
type:
Gold
Uploaded by:

