14x12m house plan AutoCAD drawing is given in this file
Description
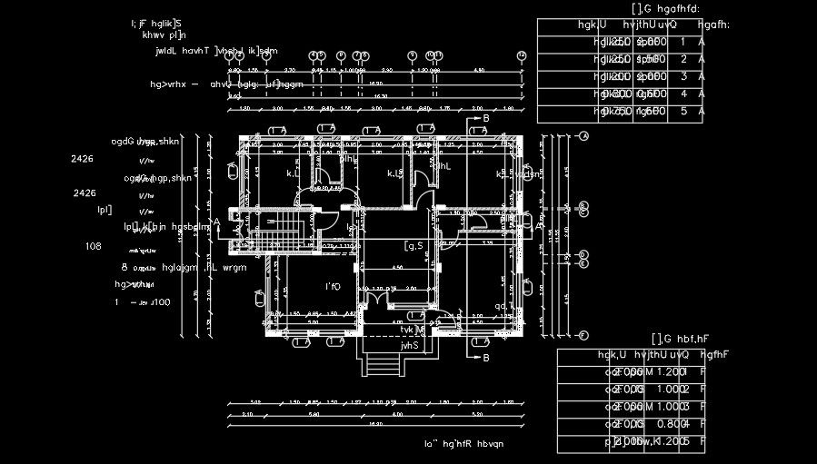
14x12m house plan AutoCAD drawing is given in this file. This is a single story house building. The living room, kitchen, family lounge area, master bedroom with the attached toilet, kid’s room, guest room, and common bathroom are available. For more details download the AutoCAD drawing file from our cadbull website.
Uploaded by:

