The front section view of the 24x14m house building AutoCAD drawing
Description
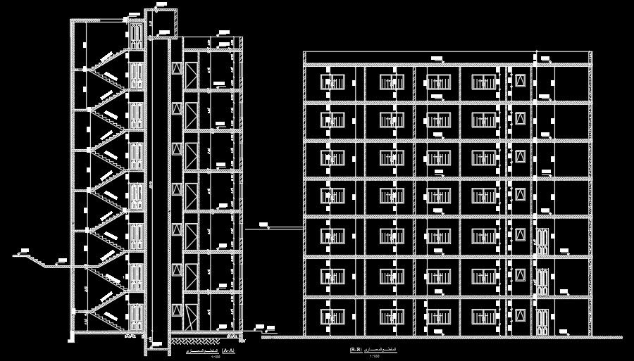
The front section view of the 24x14m house building AutoCAD drawing is given in this file. Two houses are available on each floor. Each house contains the living room, kitchen, family lounge area, master bedroom with the attached toilet, kid’s room, guest room, and common bathroom. For more details download the AutoCAD drawing file from our cadbull website.
File Type:
DWG
File Size:
774 KB
Category::
Structure
Sub Category::
Section Plan CAD Blocks & DWG Drawing Models
type:
Free
Uploaded by:

