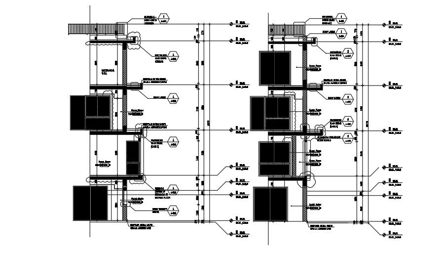
The left side section view of the 23x18m house building drawing
Description
The left side section view of the 23x18m house building drawing is given in this file. The living rooms, kitchen, bedrooms, bathrooms, study room, guest room, and roof terraces are mentioned. For more details download the AutoCAD drawing file from our cadbull website.
File Type:
DWG
File Size:
1.4 MB
Category::
Structure
Sub Category::
Section Plan CAD Blocks & DWG Drawing Models
type:
Gold
Uploaded by:

