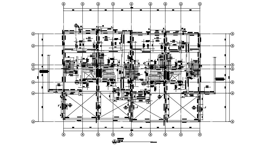
32x17m ground floor ceiling framing plan drawing is given in this model
Description
32x17m ground floor ceiling framing plan drawing is given in this model. The dimension of the column is mentioned. The dimension of the each dimension is mentioned. The distance between each foundation is given. For more details download the AutoCAD drawing file from our cadbull website.
Uploaded by:

