30' x 50' South Facing Ground Floor And First Floor Plan AutoCad DWG.FIle.

30' x 50' South Facing Ground Floor And First Floor Plan AutoCad DWG.FIle.
Profile

Uploaded by:

apurva

munet

Description
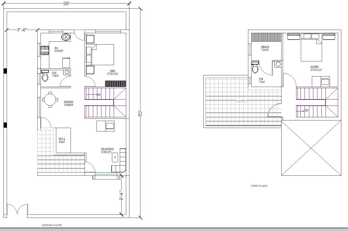
30' x 50' South Facing Ground Floor And First Floor Plan Autocad DWG.FIle. This File Is a double-story residence having two-bedroom. The drawing space flows into the dining space with the pooja room sitting in a small niche framed by the two. The drawing room is, however, distinguished by its double volume. Upstairs, the master bedroom is a luxurious room with a separate dress area and toilet. The skewed pyramid at a gradually increasing height gives the residence its overall stepped-up form. The walls are finished with rough-textured stone tiles. The square checked geometry for the gate, railing, and grill of the boundary wall set the overall language.
Profile

Uploaded by:

apurva

munet

find Latest

Related Files

WhatsApp Chat