23x15m residential multistory apartment second floor pipe line layout CAD drawing
Description
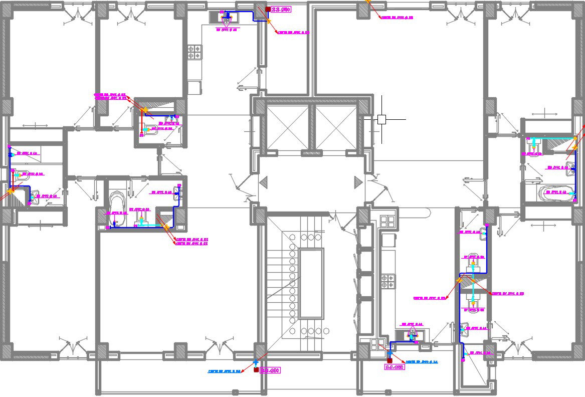
23x15m residential multistory apartment second floor pipe line layout CAD drawing is given in this file. On each plan, three bathrooms, and kitchens are available and pipe lines are provided to these areas. This apartment house plan given with the detailed view of the two houses. On each floor two houses are available. This is a 3bhk house plan. On each house, the living room, dining area, kitchen, balcony, parent’s bedroom with attached toilet, kid’s room with the attached toilet, guest room, and common bathrooms are available. The length and breadth of the houses plans are mentioned clearly in this drawing. For more details download the AutoCAD drawing file from our Cadbull website.
Uploaded by:

