10x20m residential home plan ground floor CAD drawing

10x20m residential home plan ground floor CAD drawing
Profile

Uploaded by:

Meera

Description
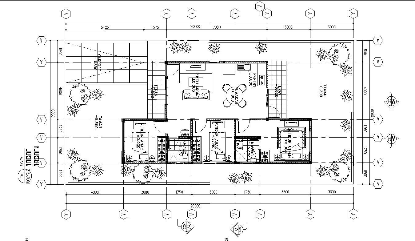
10x20m residential home plan ground floor CAD drawing is given. This is a single floor building. The length and breadth of the constructed house plan are 7m and 13m respectively. Car parking, park, living room cum dining area, kitchen, master bedroom with the attached toilet, kid’s room, guest room, terrace, and common bathroom are available. This is a 3bhk residential building which included with car parking. The open kitchen is provided. Furniture’s locations are given in this drawing. A terrace plan is given. A void is provided at the middle of the house. For more details download the CAD drawing file from our website.
Profile

Uploaded by:

Meera

find Latest

Related Files

WhatsApp Chat