27x12m amazing house plan AutoCAD drawing
Description
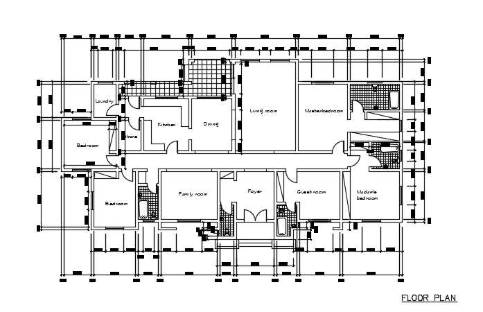
27x12m amazing house plan AutoCAD drawing is given in this file. This is a single floor building. In this ground floor plan, foyer, family room, guest room with attached toilet, living room, dining area, kitchen, laundry, store room, master bedroom with attached bathroom, parent’s room with the attached bathroom, two kid’s room, and common bathrooms are available. For more details download the AutoCAD drawing file from our website.
Uploaded by:

