Pump house and guard room plan is given in this AutoCAD file
Description
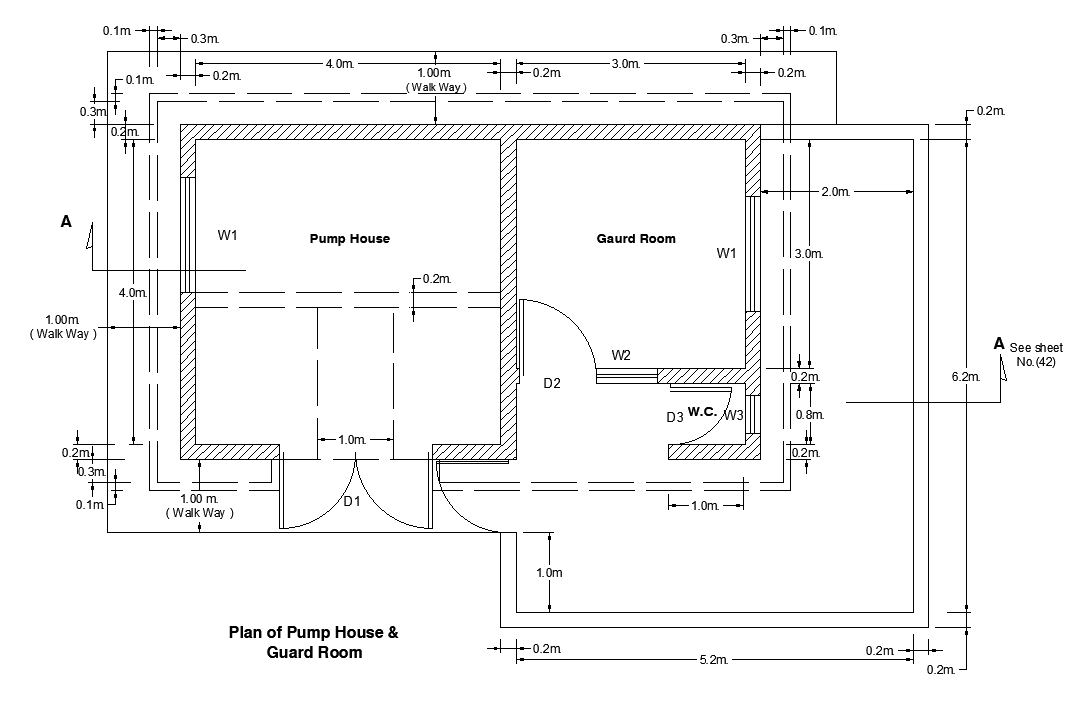
Pump house and guard room plan is given in this AutoCAD file. The length and breadth of the pump and guard house plans are 9.6m and 6.4m respectively. For more details download the AutoCAD drawing file. Thank you for downloading the AutoCAD drawing file in advance and other CAD program files from our website.
Uploaded by:

