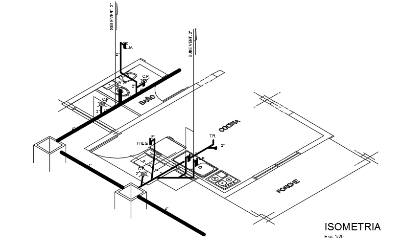
An isometric view of the plumbing layout AutoCAD model
Description
An isometric view of the plumbing layout AutoCAD model is given in this file. This is single story residential building. The living room, kitchen, dining area, master bedroom with the attached toilet, kid’s room, guest room, and common bathroom is available. For more details download the AutoCAD file from our cadbull website.
File Type:
DWG
File Size:
643 KB
Category::
Dwg Cad Blocks
Sub Category::
Autocad Plumbing Fixture Blocks
type:
Gold
Uploaded by:

