18x18m architecture ground floor house plan
Description
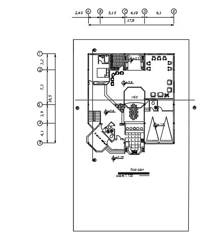
18x18m architecture ground floor house plan 2d AutoCAD drawing is given in this file. This is G+ 1 house building. On this first floor, the living room, kitchen, dining area, master bedroom with the attached toilet, and office room is available. For more details download the AutoCAD drawing file from our cadbull website.
Uploaded by:

