13x11m first floor house plan AutoCAD model is given in this file
Description
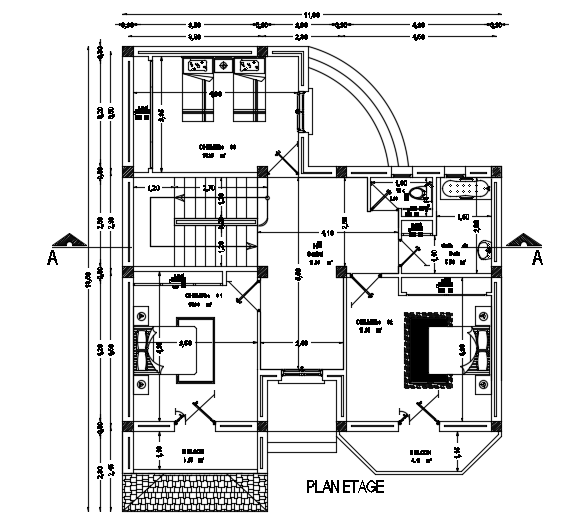
13x11m first floor house plan AutoCAD model is given in this file. This is G+ 1 house building. On this first floor, the living room, the master bedroom, guest room, kid’s room, and common bathrooms are available. The staircase is provided inside of the house. For more details download the AutoCAD drawing file from our cadbull website.
Uploaded by:

