A site layout of the 10x17m two story residential house building
Description
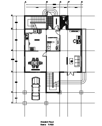
A site layout of the 10x17m two story residential house building is given in this file. The total height of the house building is 10.7m. This is a 3bhk house plan. For more details download the AutoCAD drawing file from our website.
Uploaded by:

