10x25m wonderful house plan CAD drawing is given in this file
Description
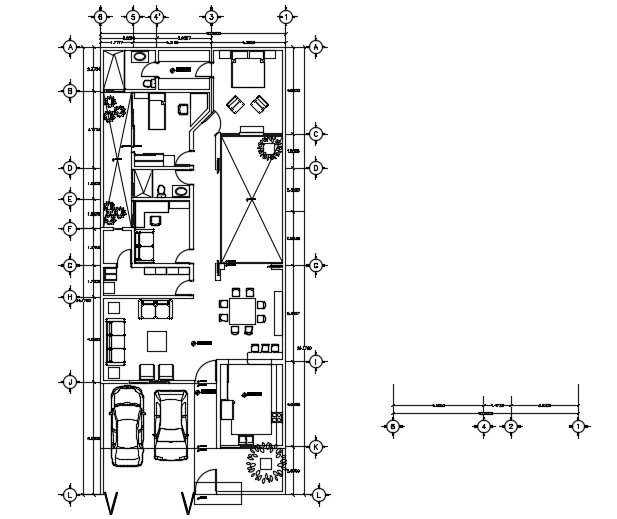
10x25m wonderful house plan CAD drawing is given in this file. This is a single story house building. The living room, kitchen, dining area, car parking, master bedroom with the attached toilet, kid’s room, and study room is available. For more details download the AutoCAD drawing file from our website. Thank you for downloading this Cad file from our cadbull website.
Uploaded by:

