10x15m architecture 1bhk ground floor house plan CAD model
Description
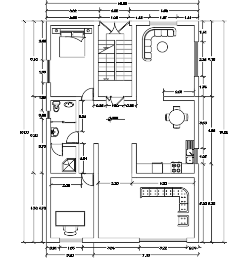
10x15m architecture 1bhk ground floor house plan CAD model is given in this file. Two houses are available on this plan. This is two-story house building. On this, ground floor plan, the living room, kitchen, dining area, master bedroom, study room, family lounge area, and common bathroom is available. The staircase is provided outside of the home. For more details download the AutoCAD drawing file from our cadbull website.
Uploaded by:

