The roof layout of the 10x15m house plan drawing is given in this file
Description
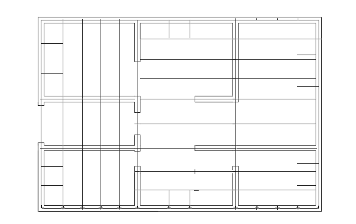
The roof layout of the 10x15m house plan drawing is given in this file. The length and breadth of the house plan are 10.30m and 15m respectively. Two holes are provided. For more details download the AutoCAD drawing file from our cadbull website.
Uploaded by:

