A layout of the 10x16m first floor house plan AutoCAD diagram
Description
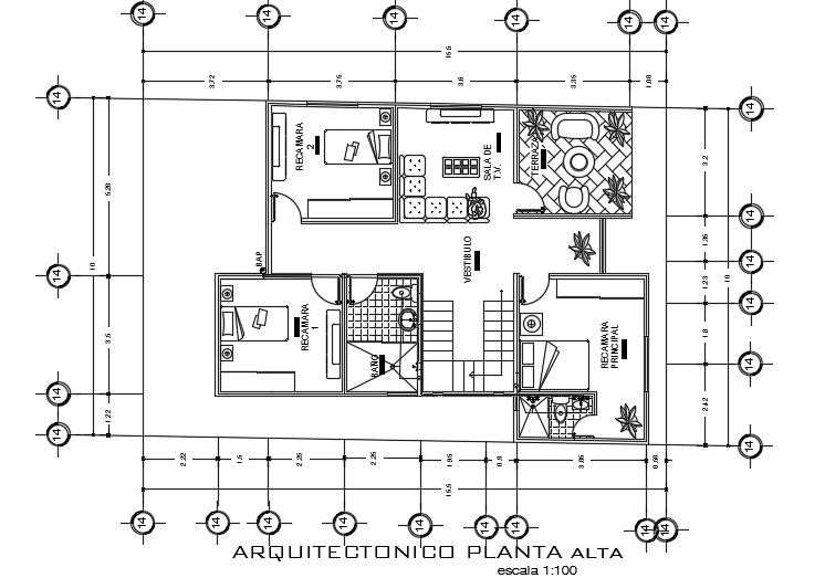
A layout of the 10x16m first floor house plan AutoCAD diagram is given in this file. The total height of the building is 7.35m. This is G+ 1 house building. On this first floor, the TV room, terrace area, master bedroom with the attached toilet, kid’s room, guest room, and common bathrooms are available. For more details download the AutoCAD drawing file from our cadbull website.
Uploaded by:

