16x10m ground floor clinic cum house plan cad drawing
Description
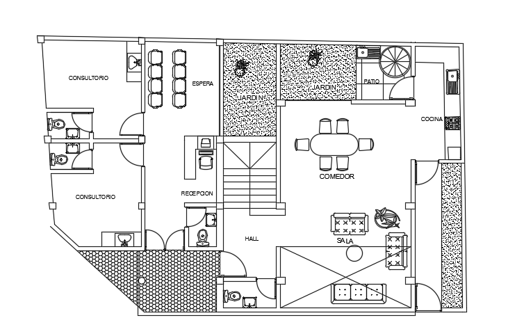
16x10m ground floor clinic cum house plan cad drawing is given in this file. This is two story building. On this ground floor, the hospital is available. On this first floor, house plan is available. On this ground floor, consulting room, car parking, waiting hall, reception, garden, and pharmacy is available. For more details download the AutoCAD drawing model from our cadbull website.
Uploaded by:

