18x16m architecture first floor house plan AutoCAD 2d drawing is given in this file
Description
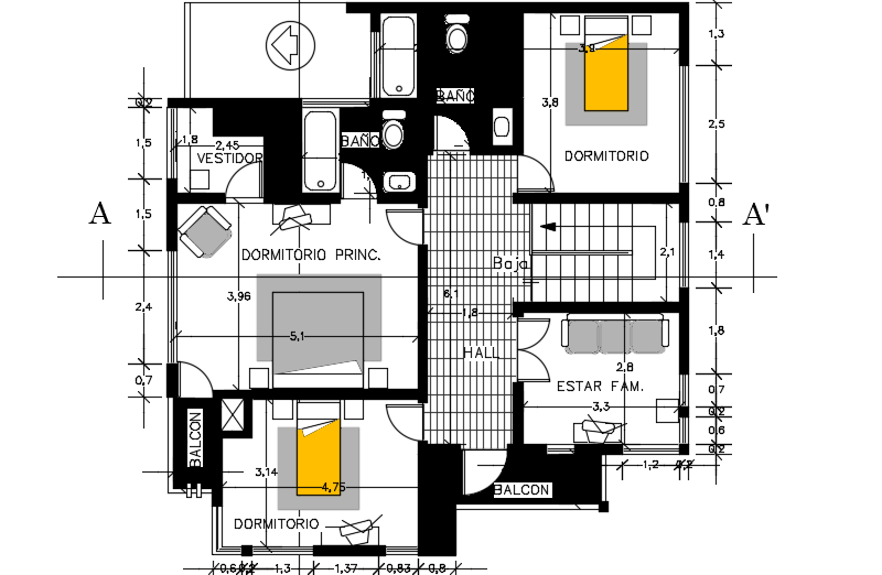
18x16m architecture first floor house plan AutoCAD 2d drawing is given in this file. This is two story house building. On this first floor, the living room, master bedroom with the attached toilet, kid’s bedroom, guest bedroom, and common bathroom is available. For more details download the AutoCAD model from our cadbull website.
Uploaded by:

