6x16m architecture first floor 2bhk home plan is given in this file
Description
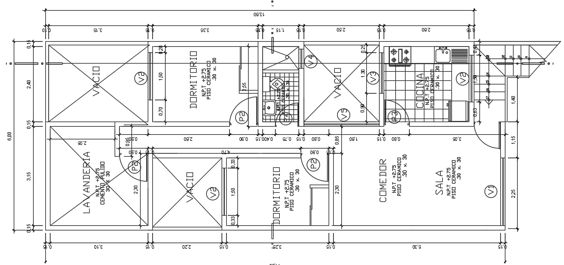
6x16m architecture first floor 2bhk home plan is given in this file. This is two story house building. On this first floor, the living room, kitchen, dining area, master bedroom, open void, kid’s bedroom, and common bathroom is available. The total height of the building is 6.2m. For more details download the AutoCAD drawing model from our website. Thank you for downloading the AutoCAD file from our cadbull website.
Uploaded by:

