12x10m architecture house plan cad 2d drawing is given in this file

12x10m architecture house plan cad 2d drawing is given in this file
Profile

Uploaded by:

Meera

Description
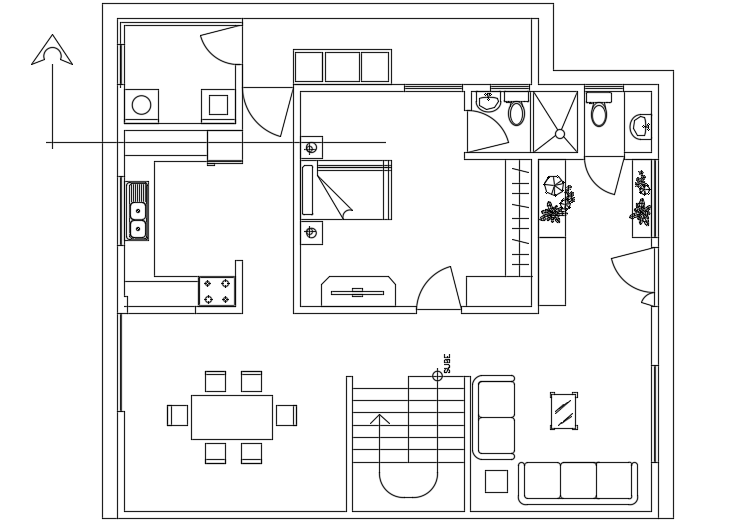
12x10m architecture house plan cad 2d drawing is given in this file. On this ground floor, the dining area, living room, kitchen, master bedroom with the attached toilet, and common bathroom is available. For more details download the AutoCAD drawing model from our website. Thank you for downloading the AutoCAD file from our cadbull website.
Profile

Uploaded by:

Meera

find Latest

Related Files

WhatsApp Chat