8x15m architecture 3 story first floor house plan cad drawing is given in this file
Description
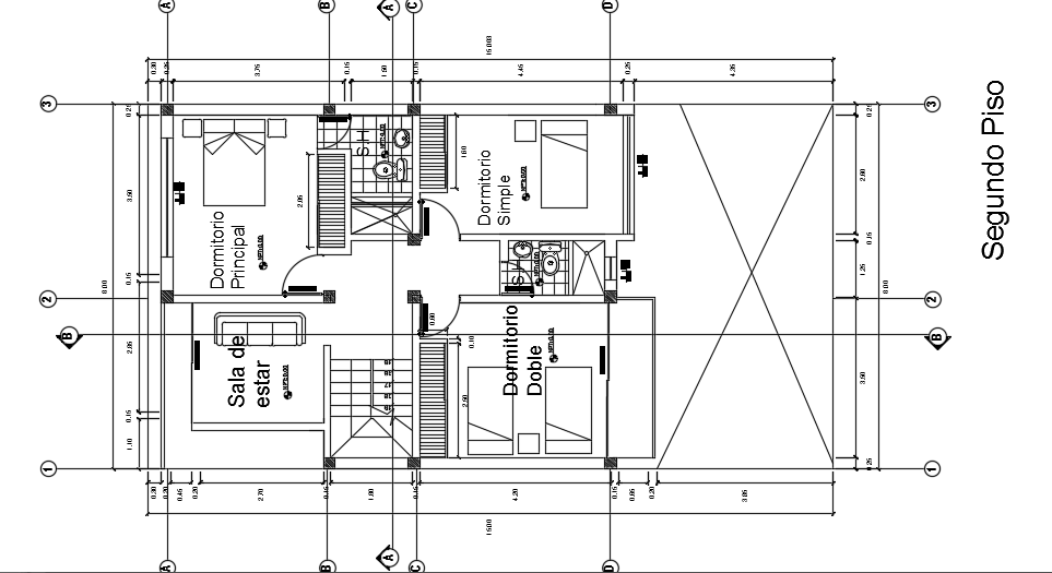
8x15m architecture 3 story first floor house plan cad drawing is given in this file. This is G+ 2 house building. On this first floor, the living room, master bedroom with the attached toilet, kid’s bedroom, guest bedroom, and common bathroom is available. For more details download the AutoCAD drawing model from our website. Thank you for downloading the AutoCAD file from our cadbull website.
Uploaded by:

