10x14m two story house plan AutoCAD drawing is given in this file
Description
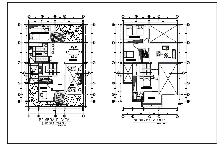
10x14m two story house plan AutoCAD drawing is given in this file. This is duplex house building. On this ground floor, hall, living room, drawing room, patio, dining area, kitchen, garden, service room, and common bathroom is available. On this first floor, the living room, master bedroom with the attached toilet, guest bedroom, kid’s bedroom, and common bathroom is available. For more details download the AutoCAD drawing model from our website. Thank you for downloading the AutoCAD file from our cadbull website.
Uploaded by:

