45x10m beautiful ground floor house plan cad drawing is given in this file
Description
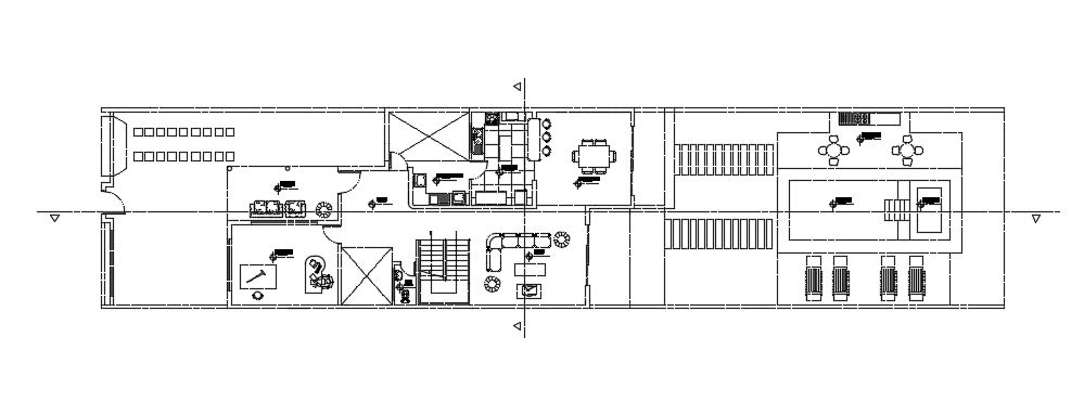
45x10m beautiful ground floor house plan cad drawing is given in this file. This is two story house building. On this ground floor, the living room, kitchen, dining area, out side kitchen, swimming pool, bar, garden, and common bathroom is available. For more details download the AutoCAD drawing model from our website. Thank you for downloading the AutoCAD file from our cadbull website.
Uploaded by:

