45x10m architecture first floor house plan cad model is given in this file
Description
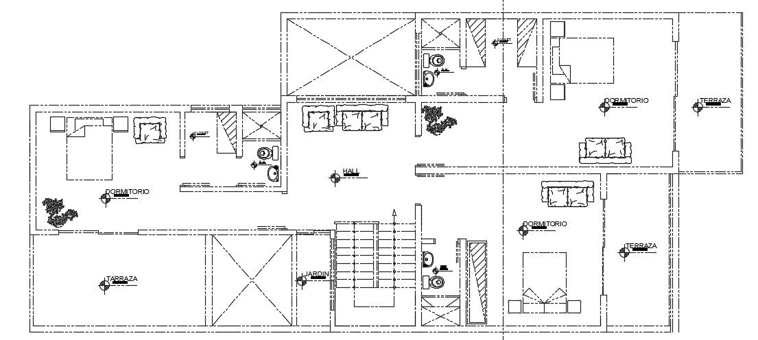
45x10m architecture first floor house plan cad model is given in this file. This is two story house building. On this first floor, the master bedroom with the attached toilet, kid’s bedroom, guest bedroom with the attached toilet, and living room is available. For more details download the AutoCAD drawing model from our website. Thank you for downloading the AutoCAD file from our cadbull website.
Uploaded by:

