18x18m architecture two story superb second floor house plan
Description
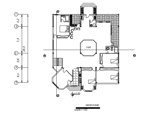
18x18m architecture two story superb second floor house plan cad drawing is given in this file. This is G+ 1 villa building. On this second floor, the living room, master bedroom with the attached toilet, two kid’s room, guest room, and common bathroom is available. For more details download the AutoCAD drawing model from our cadbull website. Thank you for downloading the AutoCAD files from our cadbull website.
Uploaded by:

