10x14m simple 2bhk house plan water line AutoCAD drawing is given in this file
Description
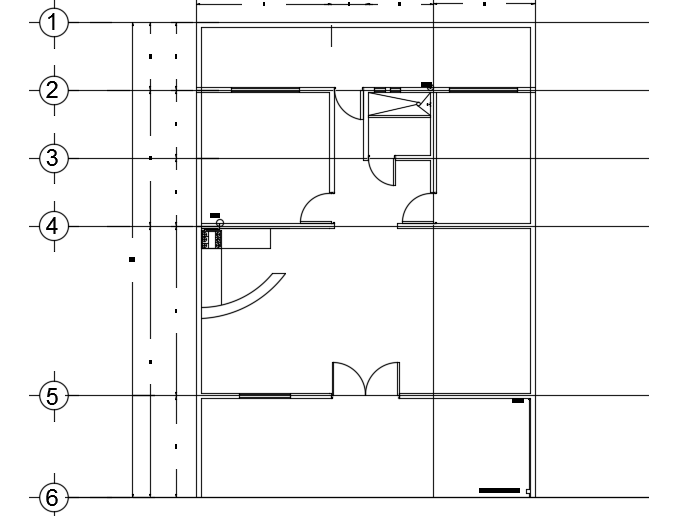
10x14m simple 2bhk house plan water line AutoCAD drawing is given in this file. This is single story house building. On this floor plan, the living room, kitchen, dining area, master bedroom, kid’s bedroom, and common bathroom is available. For more details download the AutoCAD drawing model is given in this file. Thank you for downloading the AutoCAD drawing model from our cadbull website.
File Type:
DWG
File Size:
379 KB
Category::
Dwg Cad Blocks
Sub Category::
Autocad Plumbing Fixture Blocks
type:
Gold
Uploaded by:

