6x8m architecture 2bhk house plan 2d AutoCAD model is given in this file
Description
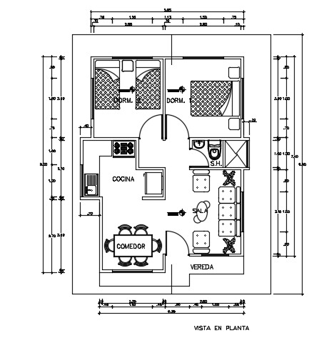
6x8m architecture 2bhk house plan 2d AutoCAD model is given in this file. This is single story house building. On this floor plan, the living room, kitchen, dining area, master bedroom, kid’s bedroom, and common bathroom is available. For more details download the AutoCAD drawing model is given in this file. Thank you for downloading the AutoCAD drawing model from our cadbull website.
Uploaded by:

