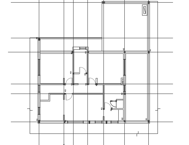
The column layout of the 15x13m architecture 3bhk first floor house plan cad drawing
Description
The column layout of the 15x13m architecture 3bhk first floor house plan cad drawing is given in this file. This is two story residential building. On this first floor, the master bedroom with the attached toilet, kid’s bedroom, guest bedroom, and common bathroom is available. For more detail download the AutoCAD 2d drawing file from our website. Thank you for downloading the AutoCAD drawing file from our cadbull website.
Uploaded by:

