AutoCAD DWG of 13x10m Ground Floor Layout for Residential House
Description
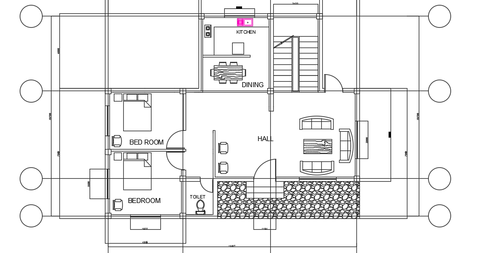
This detailed DWG AutoCAD drawing represents the 13x10m ground floor house plan with precise room arrangements and architectural clarity. It includes a master bedroom, children’s bedroom, kitchen, dining area, living room, and bathroom. Each space is thoughtfully designed to optimize natural light and easy circulation. Perfect for architects and designers, this ground-floor layout is a strong reference for residential house projects and professional architectural studies.
Uploaded by:

