15x15m Architecture Double-Story First Floor House Plan CAD Drawing
Description
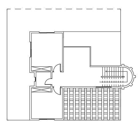
This CAD drawing shows the first-floor plan of a 15x15m double-story house. The layout features a living room, master bedroom, guest bedroom, and a common bathroom. Designed for architects and designers, this detailed AutoCAD plan helps with precise planning and implementation of residential layouts. It provides clear measurements and structural details to ensure an accurate representation of the first floor.
Uploaded by:

