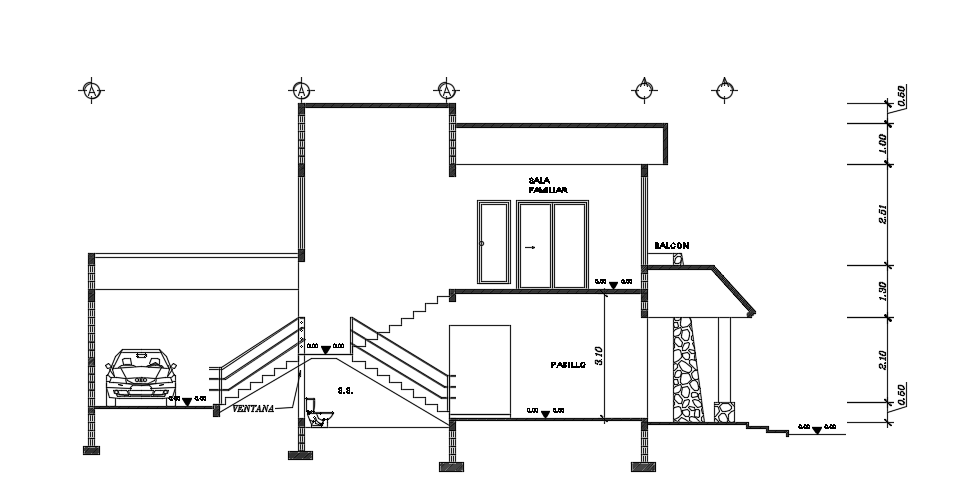
The left side section view of the 16x16m architecture house building
Description
The left side section view of the 16x16m architecture house building is given in this file. This is two story villa building. On this ground floor, a car parking, living room, kitchen, dining area, study room, master bedroom with the attached toilet, and common bathroom is available. On this first floor, the master bedroom with the attached toilet, kid’s bedroom, and common bathroom is available. For more details download the AutoCAD drawing model from our cadbull. Thank you for downloading the AutoCAD files from our cadbull website.
Uploaded by:

