30x15m residential site layout AutoCAD drawing is given in this file
Description
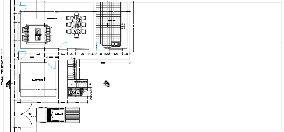
30x15m residential site layout AutoCAD drawing is given in this file. This is two story residential building. The length and breadth of the house plan are 12m and 15m respectively. On this ground floor plan, the living room, garage, kitchen, dining room, master bedroom, and common bathroom is available. For more details download the AutoCAD model from our cadbull website. Thank you for downloading the AutoCAD files from our website.
Uploaded by:

