Layout and beam detail of residential building istructure detail
Description
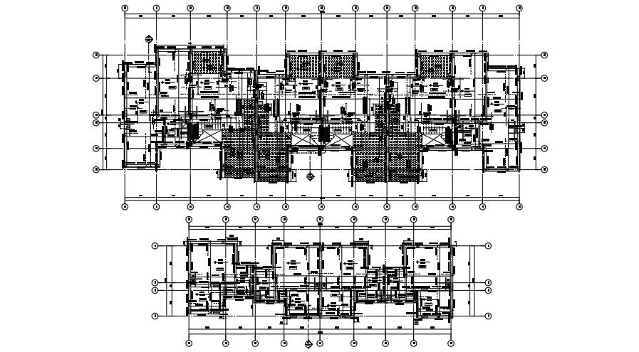
Here layout and beam detail of residential building Steel beam connections are categorized into two groups namely framed and seated connections.in this drawing show beam and column with structure details of plan in this plan show layout of staircase , bedroom ,kitchen ,living room ,attached bathroom ,wash area and also balcony provided also in drawing shown beam and structure detail of drawing for more details download this file.
File Type:
DWG
File Size:
6.4 MB
Category::
Structure
Sub Category::
Section Plan CAD Blocks & DWG Drawing Models
type:
Gold
Uploaded by:
zalak
prajapati

