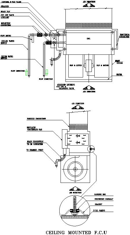
Celling mounted FCU
Description
Surface mounts that are specifically mounted to the ceiling are also called ceiling mounts. Some surface mount lights in industrial lighting can be attached to the ceiling by either a static fixture or a chain. The air handling unit (AHU) is the heart of central air conditioning. It collects outside air and room air, removes dust and other particles from the collected air, adjusts the temperature and humidity and then supplies comfortable and refreshing air-conditioned air into the rooms through ducts. The FCW consists of a fan coil unit, a heat exchange element, and a filter. Fan coils are ideal machines for summer air conditioning and winter heating of the home and of any room. including for more details download this file .
File Type:
DWG
File Size:
5.2 MB
Category::
Mechanical and Machinery
Sub Category::
Mechanical Engineering
type:
Gold
Uploaded by:
zalak
prajapati

