Residential building sectional plan
Description
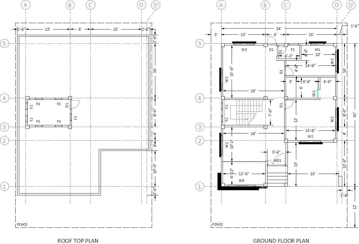
Here Residential building sectional plan shown ground floor sectional plan and roof sectional plan ,in ground floor sectional plan show stairs and building plan layout including living room , kitchen , bedroom , storeroom , and attached toilet and bathroom also provided balcony in roof sectional plan provide stairs and cabin ,A roof plan includes roof dimensions, specifications for roof pitch/slope, the placement of vents and drainage, and material specifications, A roof plan is also vital for any repair, fixtures, installations, renovations, or additional work being executed on an existing roof. for more details of Residential building sectional plan ,download this file.
File Type:
DWG
File Size:
389 KB
Category::
Structure
Sub Category::
Section Plan CAD Blocks & DWG Drawing Models
type:
Gold
Uploaded by:
Priyanka
Patel

