21x20m architecture three story ground floor residential apartment plan cad drawing
Description
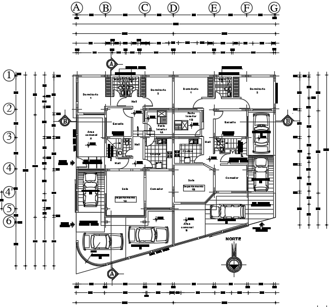
21x20m architecture three story ground floor residential apartment plan cad drawing is given in this file. This is multifamily residential building. On this ground floor, two houses are available with car parking. Each house consists of the living room, kitchen, dining room, patio, master bedroom with the attached bathroom, kid’s bedroom, and area communal is available.
Uploaded by:

