10x24m architecture single story house plan cad drawing
Description
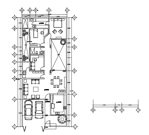
10x24m architecture single story house plan cad drawing is given in this file. This is a 2bhk house plan. On this floor plan, a car parking, kitchen, dining room, living room, TV hall, master bedroom with attached toilet, kid’s bedroom, and common bathroom is available.
Uploaded by:

