Piping fitting system details AutoCAD file, 2d drawing
Description
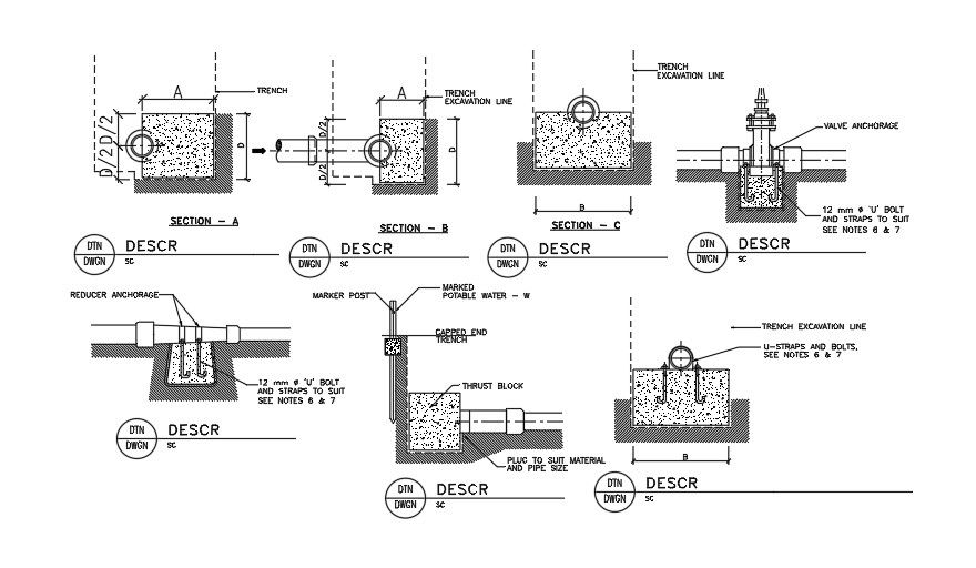
Piping fitting system details Piping Elbows, Piping Reducers, Tee Connections, Oleta Connections, Caps, Crosses, etc are pipe fittings and widely used in both the piping and plumbing industry. attach one pipe to another in order to lengthen the run or change the flow direction in a plumbing system. For more details of Piping fitting system download this AutoCAD file or cad drawing.
File Type:
DWG
File Size:
1.9 MB
Category::
Dwg Cad Blocks
Sub Category::
Autocad Plumbing Fixture Blocks
type:
Gold
Uploaded by:
zalak
prajapati

