Comprehensive 8x10m House cum Local Shop 2d DWG Plan
Description
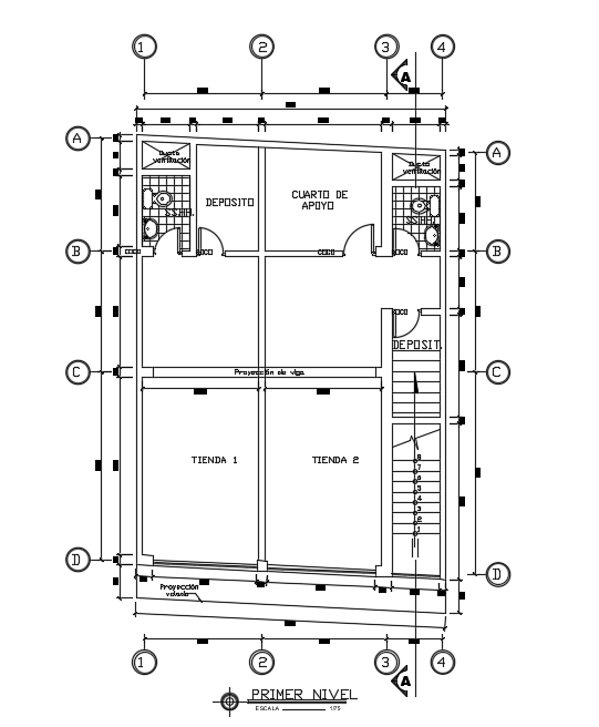
8x10m house cum local shop 2d plan is given in this file. This is four story local commercial cum house building. In this drawing, local shop 1, local shop 2, storage rooms, and common bathrooms are available.
Uploaded by:

