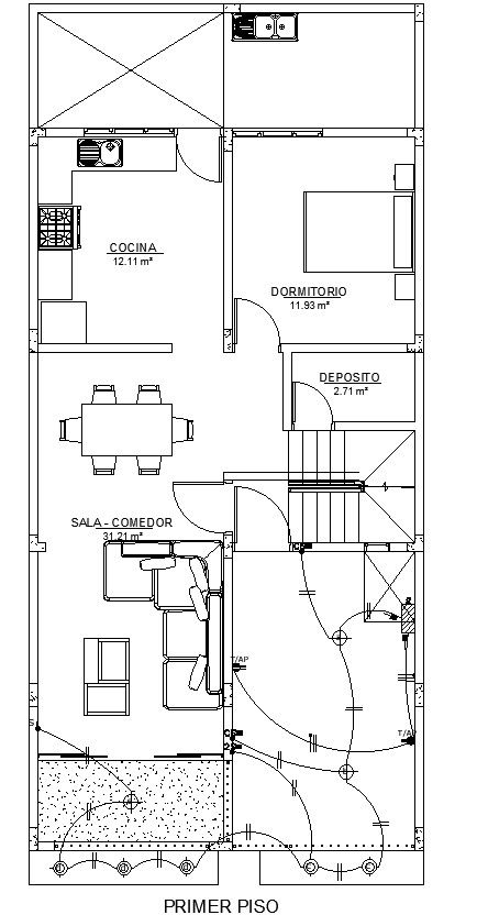
Detailed CAD Drawing Showing Ground Floor Exterior Light

Detailed CAD Drawing Showing Ground Floor Exterior Light
Profile

Uploaded by:

viddhi

chajjed

Description

This architectural drawing is Exterior lighting details of the ground floor plan in AutoCAD 2D drawing, CAD file, and dwg file. Outdoor lighting is described as fixed artificial lighting used to illuminate regions without roofs, i.e., outdoor areas. The goal of outdoor lighting is to preserve or improve the visual performance of people performing human activities by illuminating the space. For more details and information download the drawing file. Thank you for visiting our website cadbull.com.

Profile

Uploaded by:

viddhi

chajjed

find Latest

Related Files

WhatsApp Chat