Ground and First Floor House Layout AutoCAD 2D Drawing
Description
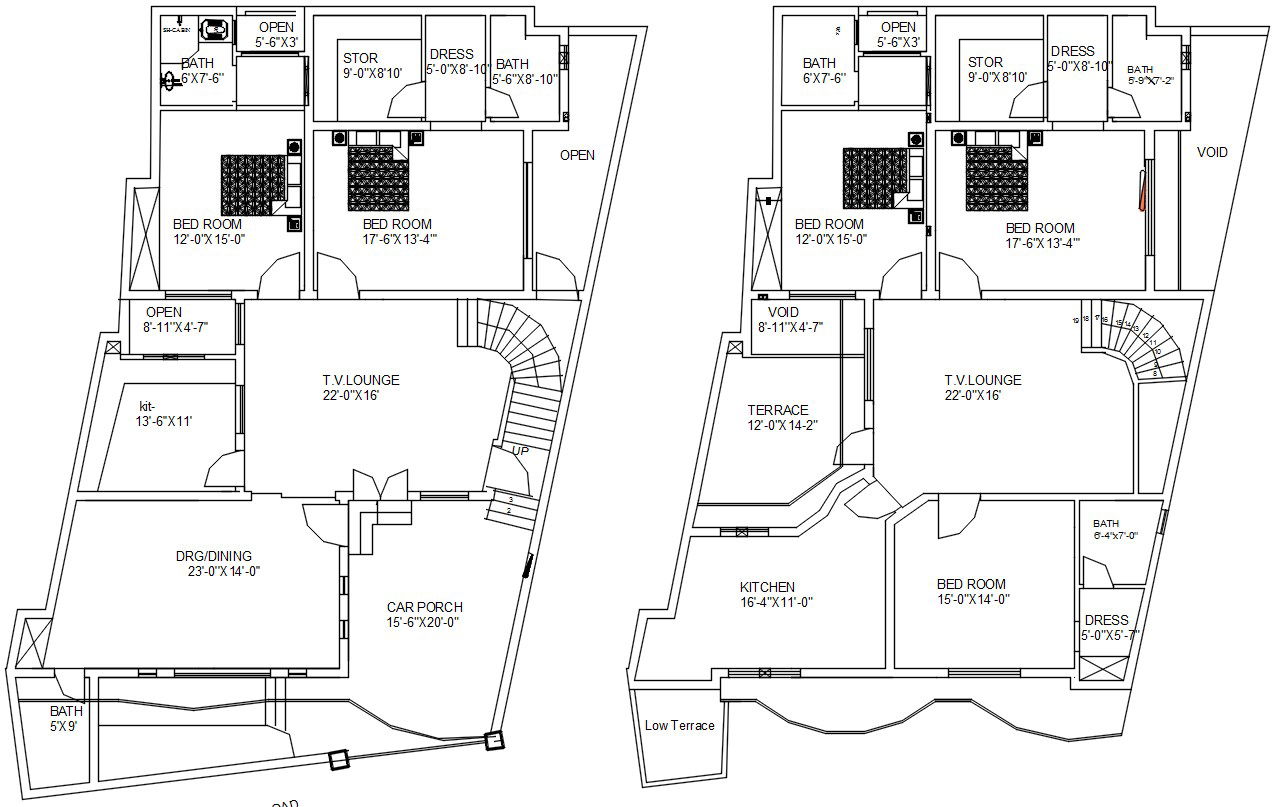
Ground floor and First-floor plan of the house in detail AutoCAD 2D drawing. On the ground floor, a car porch, kitchen, drawing room, Tv lounge, two bedrooms with attached toilet-bathroom, wash area, etc. are available. On the first floor, three bedrooms with attached toilet-bathroom, kitchen, low terrace, terrace, etc. are available. For more knowledge and detailed information download the AutoCAD drawing file.
Uploaded by:
viddhi
chajjed

