Detailed Plumbing Draft for House Floors in DWG File
Description
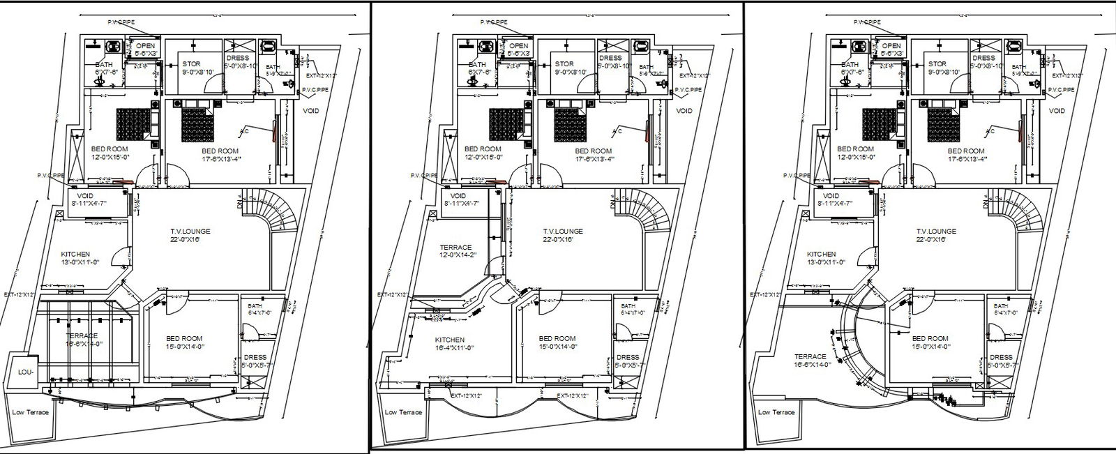
Plumbing details of the ground floor and first floor of the house in AutoCAD 2D drawing. PVC pipes are indicated in the plan. For more knowledge and detailed information download the AutoCAD drawing file.
Uploaded by:
viddhi
chajjed

