2D AutoCAD Drawing Showing House Elevation and Section
Description
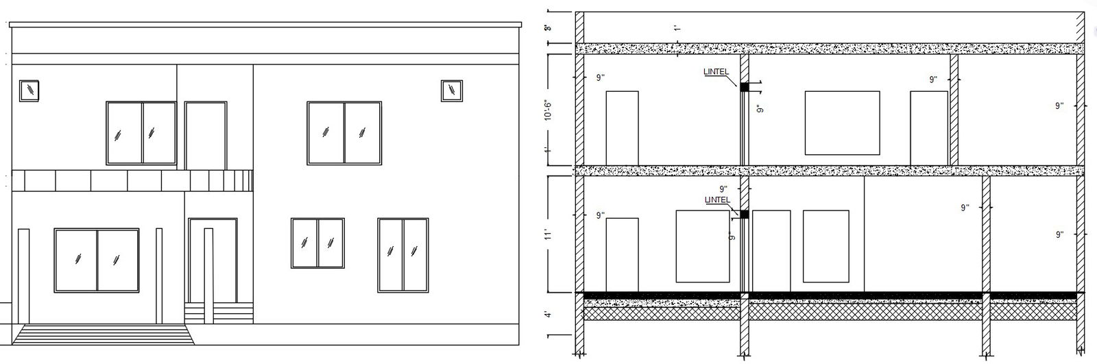
Elevation and section plan of house with details in AutoCAD 2D drawing. wall thickness, the height of the section, etc. are given in detail. For more knowledge and detailed information download the AutoCAD drawing file.
Uploaded by:
viddhi
chajjed

