G plus one story house plan in AutoCAD 2D drawing file
Description
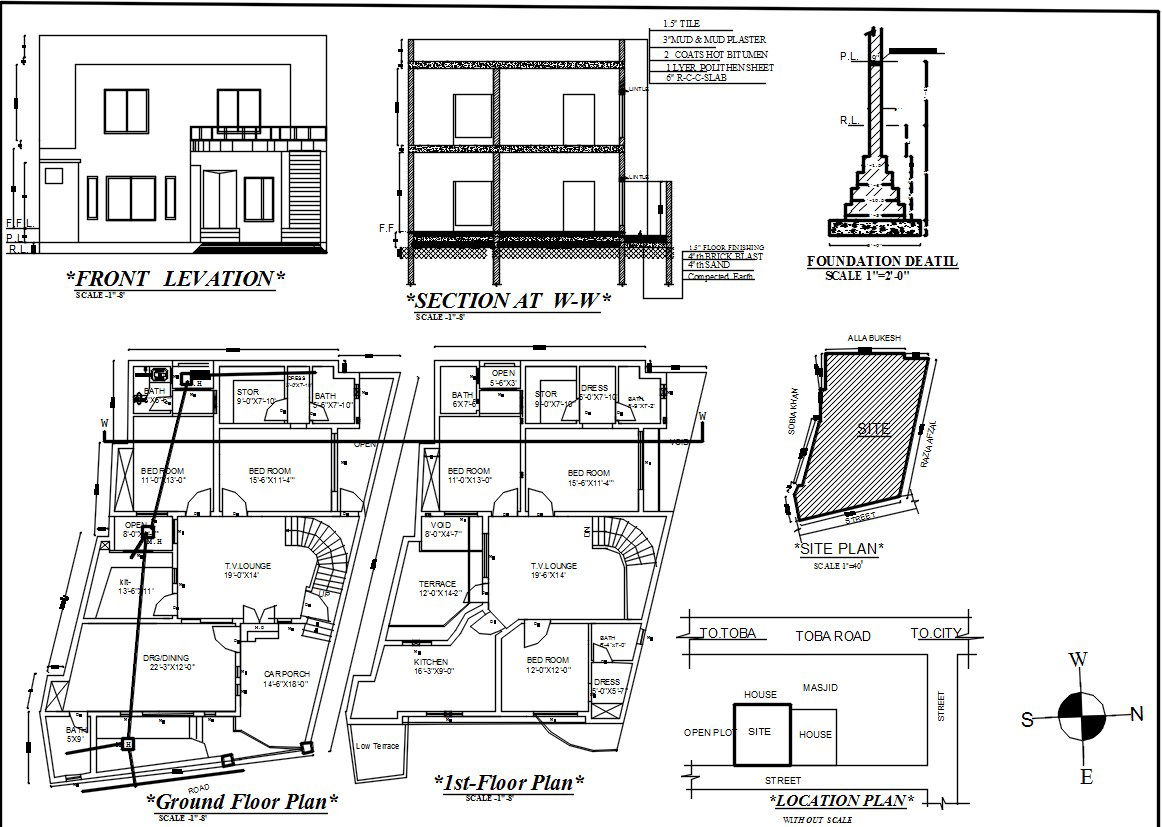
G+1 story house floor plan design in AutoCAD 2D drawing. The site plan, location plan, foundation details, front elevation and sections W-W, and other detailed information are given in this file. For more knowledge and detailed information download the 2D AutoCAD dwg file.
Uploaded by:
viddhi
chajjed

