Typical Hotel Floor Plan Layout in AutoCAD DWG format
Description
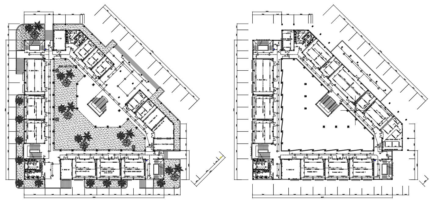
Typical floor plan of hotel design with part of architecture dwg file in plan with detail of area distribution, wall, and wall support detail, door detail, bedroom with bed detail, washing area detail, dining area detail, dimensional detail in the plan. For more detailed knowledge and information download the 2D AutoCAD file.

Uploaded by:
Eiz
Luna

