Luxurious Residence CAD Drawing with Plans Elevations and Sections
Description
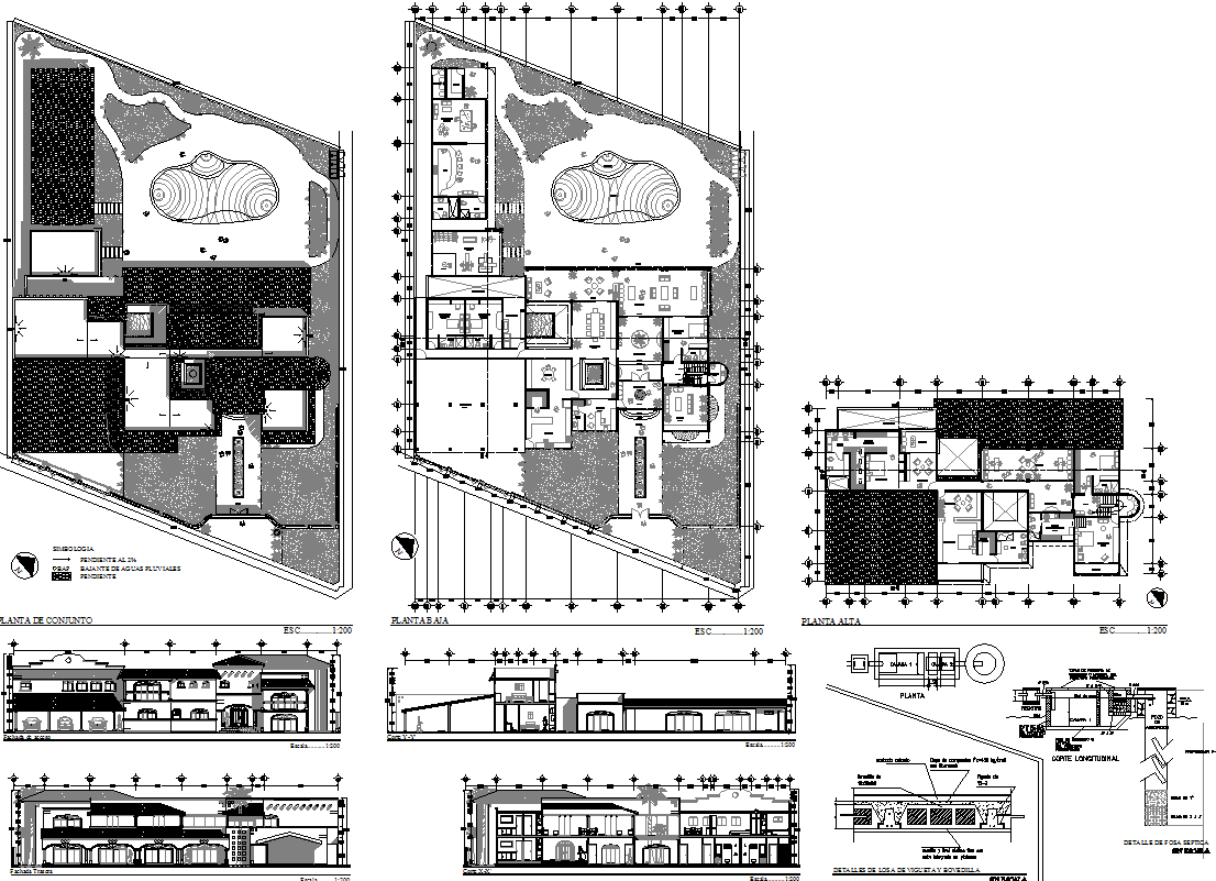
This luxurious residence cad drawing provides a complete architectural layout suitable for residential planning and design development. The file includes detailed floor plans that showcase room placement, circulation space, and interior arrangement ideal for premium home projects. Along with plans, the drawing also contains precise sectional views that present important structural and height details, enabling a better understanding of level differences and construction sequences. The elevations included provide a clear representation of the external building facade, helping visualize the aesthetic look and architectural style of the residence.
This cad drawing is a valuable reference for architects, civil engineers, interior designers, and design professionals who require high-quality and well-structured residential blueprint documentation. The file can be used for client presentation, working drawing preparation, or adapting into new housing design proposals. It is compatible with AutoCAD and other supported cad software, ensuring smooth editing and integration within ongoing design workflows. Download this 2d cad file now to access professionally detailed and accurate architectural reference material for luxury residential design projects.

Uploaded by:
Eiz
Luna

