Office Section and Elevation Details with Door and Window Schedule in DWG File
Description
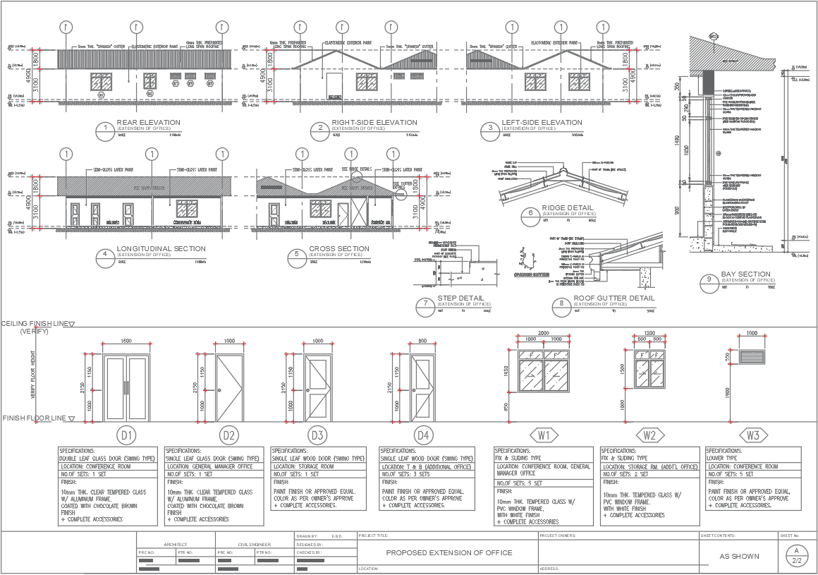
This AutoCAD file provides comprehensive details for an office space, featuring the rear elevation extension, right-side elevation extension, left-side elevation, section, cross section, roof gutter detail, and a meticulous door and window schedule. The CAD drawing, available in DWG file format, ensures easy accessibility and integration into your projects. The elevation sections vividly showcase the architectural nuances, while the door and window schedule adds practical insights for seamless implementation. With this CAD file, you'll find the intricate details needed for the office extension, effortlessly navigating through the design process. This resource is a valuable addition to your toolkit, providing a user-friendly experience for architects and designers alike.
Uploaded by:
K.H.J
Jani

