Sweet Home CAD Drawing with Layout and Furniture Details DWG
Description
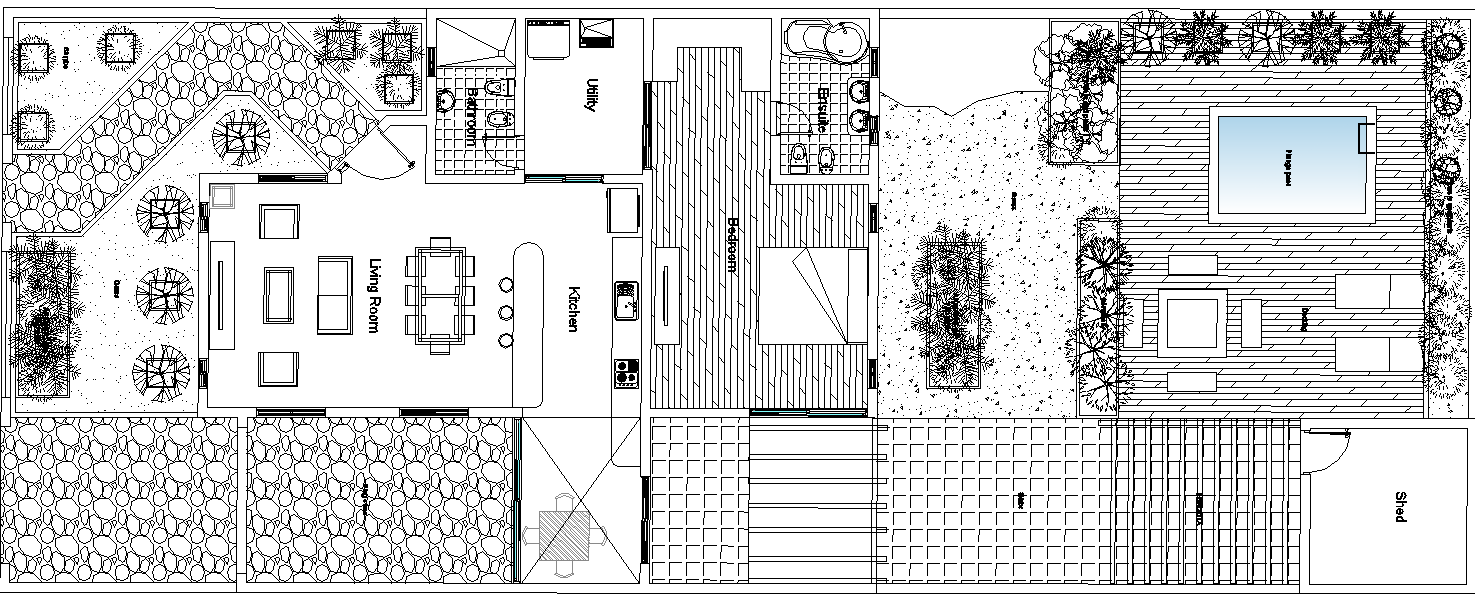
The Sweet Home CAD drawing provided in this file includes a well-detailed floor plan designed for residential planning and interior layout development. The drawing features a clear room arrangement along with furniture placement that helps in understanding spatial planning effectively. Users can analyze the complete structure and design approach, making it suitable for planning modifications, interior arrangements, or construction execution. This drawing is ideal for architects, interior designers, students, and professionals looking to reference a clean and practical home layout. The content ensures clarity in room measurements and circulation space, supporting accurate design implementation.
This CAD file is a valuable resource available for download on cadbull.com, where a wide collection of architectural and engineering drawings is provided. Subscribing to the platform gives access to numerous detailed home designs, construction drawings, and layout references helpful for planning, presentation, and execution work. The file supports users working with AutoCAD, Revit, 3d Max, SketchUp, and similar software. By accessing this Sweet Home CAD drawing, professionals can enhance their project accuracy, save drafting time, and maintain design standards. Download this drawing now and improve your workflow with professional-level layout detailing.

Uploaded by:
Eiz
Luna

